- Home
- News
- Popular Property Categories
- Anna Maria Island Real Estate
- Bedroom Communities
- Bradenton Real Estate
- Charlotte Harbor Real Estate
- Downtown Sarasota Condos
- Ellenton Real Estate
- Englewood Real Estate
- Golf Community Real Estate
- Lakewood Ranch Real Estate
- Lido Key Condos
- Longboat Key Real Estate
- Luxury Real Estate
- New Homes for Sale
- Palmer Ranch Real Estate
- Palmetto Real Estate for Sale
- Parrish Real Estate
- Siesta Key Condos
- Siesta Key Homes and Land
- Venice Florida Real Estate
- West of the Trail
- Advanced Search Form
- Featured Listings
- Buyer or Seller?
- Our Company
- Featured Videos
- Login
3904 Country View Ct, Bradenton, Florida
List Price: $849,900
MLS Number:
TB8500283
- Status: Active
- DOM: 28 days
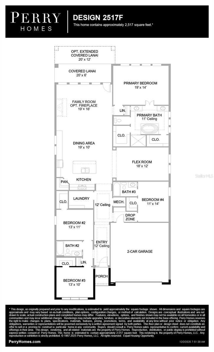
- Square Feet: 2517
- Bedrooms: 4
- Baths: 3
- Garage: 2
- City: BRADENTON
- Zip Code: 34211
- Year Built: 2026
- HOA Fee: $260
- Payments Due: Monthly
Under Construction. The front porch opens into a welcoming entryway with an extended tray ceiling that embraces the main hallway. Two secondary bedrooms with walk-in closets and full bathroom are off the main hall. A full guest suite with a private bathroom and ample closet space is adjacent. You pass the laundry room as you enter into the kitchen which features an island with built-in seating, a 5-burner gas cooktop, and corner pantry. A bonus flex room is across from the kitchen. The dining area flows from the kitchen to the connecting family room which offers abundance of natural light from its sliding glass doors and access to the backyard extended covered lanai. The primary bedroom has a wall of windows overlooking the backyard. Double doors lead into the bathroom which hosts dual vanities, a freestanding tub, glass enclosed shower and two walk-in closets. The drop zone is off the two-car garage.
Misc Info
Subdivision: Star Farms
Annual Taxes: $2,254
Annual CDD Fee: $2,023
HOA Fee: $260
HOA Payments Due: Monthly
Lot Size: 0 to less than 1/4
Request the MLS data sheet for this property
Home Features
Appliances: Built-In Oven, Cooktop, Dishwasher, Disposal, Microwave, Tankless Water Heater
Flooring: Tile, Wood
Air Conditioning: Central Air
Exterior: Sliding Doors
Room Dimensions
Schools
- Elementary: Gullett Elementary
- High: Lakewood Ranch High
- Map
- Walk Score
- Street View





























