- Home
- News
- Popular Property Categories
- Anna Maria Island Real Estate
- Bedroom Communities
- Bradenton Real Estate
- Charlotte Harbor Real Estate
- Downtown Sarasota Condos
- Ellenton Real Estate
- Englewood Real Estate
- Golf Community Real Estate
- Lakewood Ranch Real Estate
- Lido Key Condos
- Longboat Key Real Estate
- Luxury Real Estate
- New Homes for Sale
- Palmer Ranch Real Estate
- Palmetto Real Estate for Sale
- Parrish Real Estate
- Siesta Key Condos
- Siesta Key Homes and Land
- Venice Florida Real Estate
- West of the Trail
- Advanced Search Form
- Featured Listings
- Buyer or Seller?
- Our Company
- Featured Videos
- Login
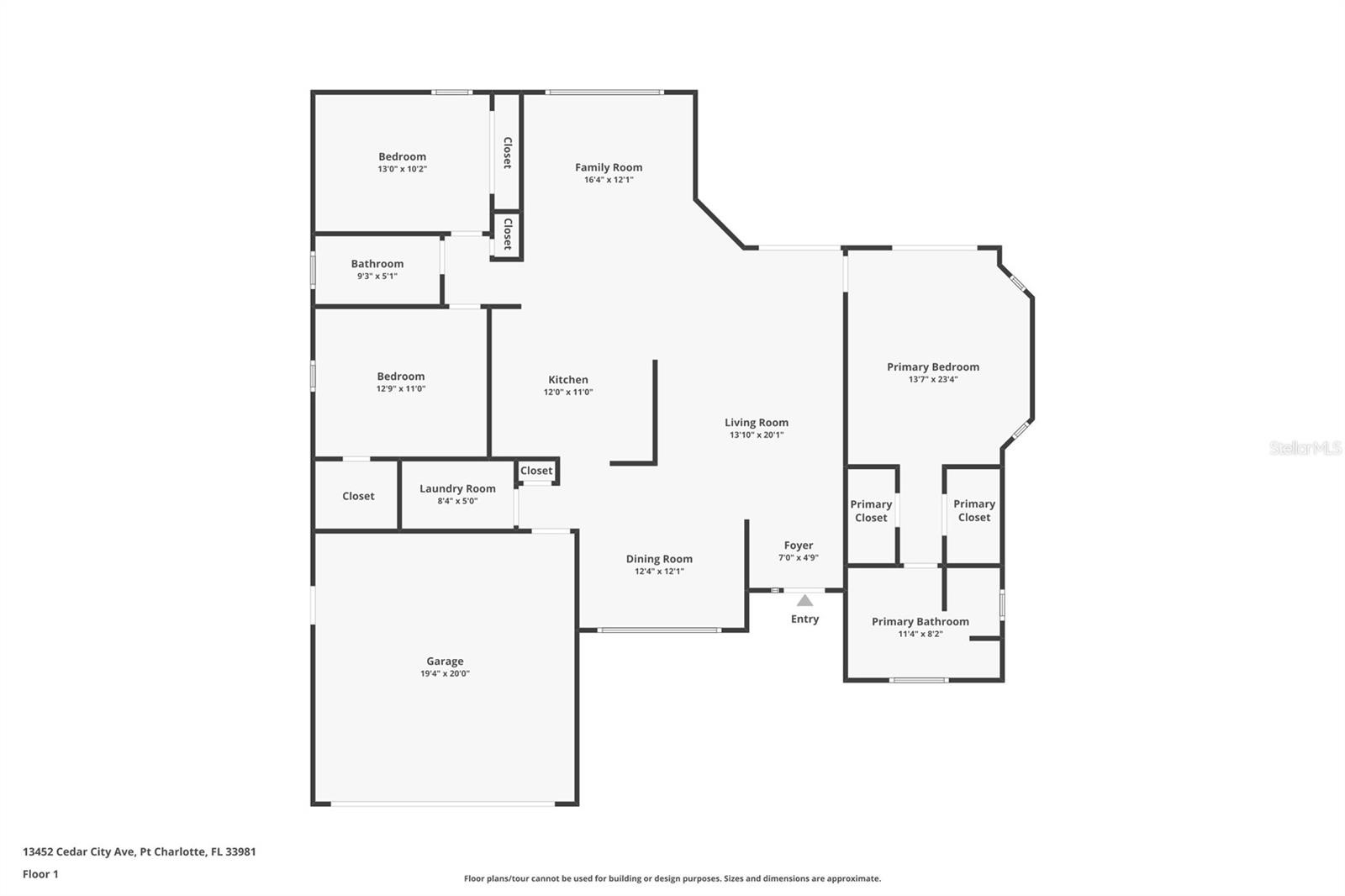
13452 Cedar City Ave, Port Charlotte, Florida
List Price: $349,000
MLS Number:
D6146096
- Status: Active
- DOM: 53 days
- Square Feet: 1714
- Bedrooms: 3
- Baths: 2
- Garage: 2
- City: PORT CHARLOTTE
- Zip Code: 33981
- Year Built: 2006
- HOA Fee: $120
- Payments Due: Annually
Rare opportunity in South Gulf Cove with EXPANSION POTENTIAL. This well maintained 3 bedroom, 2 bath home with a 2 car garage is uniquely positioned with vacant lots on BOTH sides available for purchase under the same ownership, for added privacy, future expansion, or investment an increasingly rare find in this Gulf access community. BUILD a RV GARAGE, PARK YOUR BOAT, BUILD A Mother-In-Law HOME as examples. Set within the desirable South Gulf Cove waterfront neighborhood, the home features a bright, open layout filled with natural light, volume ceilings, and an easy flow designed for everyday living and entertaining. Recent updates include a new roof (2022), exterior paint (2025), and water heater (2025), providing peace of mind for the next owner.Inside, the home offers defined yet connected living spaces, including a front dining area and inviting living room. The privately located primary suite serves as a comfortable retreat with walk-in closets and a built-in double vanity area, thoughtfully separated from the guest bedrooms.The heart of the home is the family room and kitchen combination, offering abundant cabinetry, an eat-at bar, and generous gathering space. Two additional bedrooms, a full guest bath, and a dedicated laundry room are positioned on the opposite side of the home, creating a desirable split-bedroom floor plan. Multiple sliding glass doors open to the screened lanai, allowing for natural light, cross breezes, and seamless indoor-outdoor living.South Gulf Cove is an optional HOA community known for its public boat ramp, sidewalks, walking paths, playground, pickleball courts, and active outdoor lifestyle. Located just minutes from Boca Grande beaches, boating, kayaking, world-class fishing, dining, and shopping, this property delivers both lifestyle and long-term value. All information contained herein is deemed reliable but not guaranteed. Buyer and Buyer's agent to verify all information through independent due diligence.
Misc Info
Subdivision: Port Charlotte Sec 085
Annual Taxes: $5,239
HOA Fee: $120
HOA Payments Due: Annually
Lot Size: 0 to less than 1/4
Request the MLS data sheet for this property
Home Features
Appliances: Dishwasher, Disposal, Dryer, Electric Water Heater, Range, Refrigerator, Washer
Flooring: Carpet, Tile
Air Conditioning: Central Air
Exterior: Sliding Doors
Room Dimensions
- Map
- Walk Score
- Street View










































